As their undergraduate journey through the online mechanical engineering technology program through ODUGlobal nears its conclusion, Jordan Dunn ’24 and Jacob Leonard ’24 are driven by a project to aid military veterans.

Dunn and Leonard, both online mechanical engineering students through ODUGlobal, are part of a team in Professor Charles Lowe’s senior design project course that challenges students to apply their skills to real-world solutions for meaningful causes. They’ve worked over the past two semesters to design a wheelchair mount for a handcycle for a wounded veteran.

“This isn’t a theoretical project. We’re trying to make a difference,” Leonard said of the handcycle, which is a type of bicycle powered by hand often used by those with lower-limb disabilities.

Despite being based in southern Maryland and western Virginia, Dunn and Leonard collaborated seamlessly with on-campus teammates, leveraging ODU’s technology-driven and digitally innovative platform. 

“We’ve had the chance to put what we’ve learned into practice, and it’s a project that has meaning to us,” said Leonard, who is scheduled to graduate in Fall 2024 along with Dunn.  

The project has deep meaning for Dunn. Both of Dunn’s grandparents served in the Army and the Navy, and his brother currently serves in the military.

“This is a way to honor their service and a way for me to help those who have sacrificed for our country,” Dunn said.

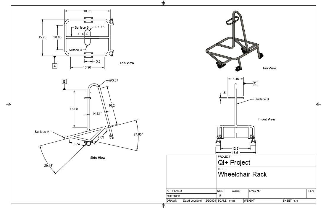
The idea for the project came from an organization called the Quality of Life Plus Program (QL Plus), a nonprofit that works with universities to engineer personalized solutions for injured veterans and first responders. The particular project, Honor Haul, engineers an aftermarket adjustable wheelchair rack for a handcycle. The team includes Kenny Elliott, David Loveland, Gabriel Goodrich and Noah Neczyporuk.

Dunn and Leonard’s team learned of the challenges a specific veteran experienced with traveling around with their handcycle. But any solution they find could have universal utility for others who have the same problem.

The team developed plans using Computer-Aided Design and worked with a manufacturer to build a prototype. The team of mechanical engineering majors connected at least weekly via Zoom to refine designs, troubleshoot issues and develop solutions, underscoring the value of collaboration in tackling real-world problems.

 

Image
The schematics of the wheelchair attachment for a handcycle.

The schematics of the wheelchair attachment for a handcycle.

 

Work on the project might continue into a further semester after both Dunn and Leonard graduate because they’ve had to switch manufacturers. But even bumps in the road have been key learning experiences to take forward.

Dunn has worked as a contractor at Naval Air Station Patuxent River, and he’s secured a full-time civilian job. He helps determine and probe issues with fighter jets.

“It’s a nice full-circle experience with working at a military base and working on this project in class,” Dunn said.

Leonard has received the 2024-25 Mechanical Engineering Technology Faculty Award for classroom achievement. In the future, he wants to design systems. The mechanical engineering degree, coupled with an electrical engineering minor, should equip him to take a comprehensive approach to engineering.

“What led me to ODU was the chance to go through a program that included quite a bit of hands-on work,” Leonard said. “We didn’t just work on theoretical solutions. We designed solutions, and those processes will help me wherever I go next.”